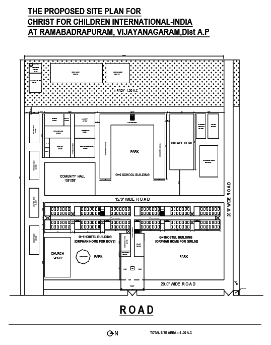
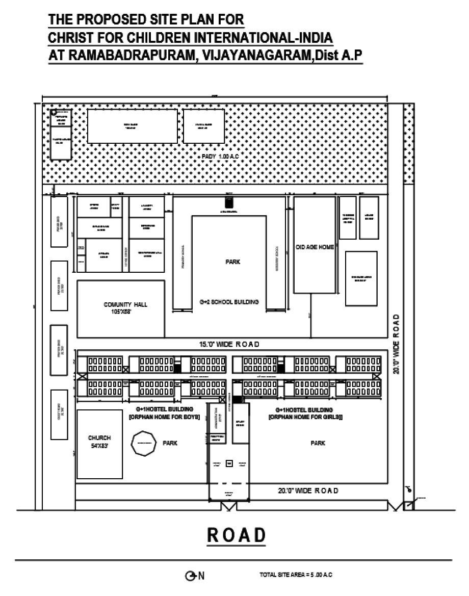
PROJET DE CONSTRUCTION D'UN CAMPUS CFCI EN INDE

- ORPHELINAT 600 LITS

- HOPITAL

- ECOLE

- EGLISE

- MAISON DE RETRAITE

- FERME

= estimation 5 MILLIONS D'EUROS

PROJET AGRICOLE AU PAKISTAN

      Achat de 5 acres de terrain agricole pour alimenter toutes les                  églises, les écoles et les orphelinats CFCI au Pakistan !!!

                       = estimation 80 000 euros (négociable)